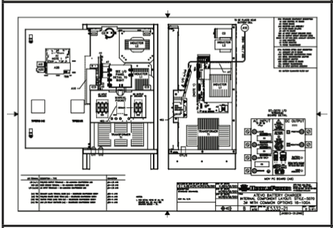
| Style-5070 |
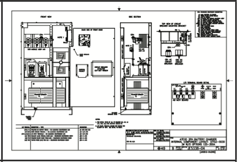
Style-5030 |
| |
|
| 16-50A – standard |
100A – standard |
| JE5332-10 |
JE5338-10 |
| 16-50A – optional |
100A – optional |
| JE5332-19 |
JE5338-19 |
| 75-100A – standard |
125-300A – standard |
| JE5332-20 |
JE5338-20 |
| 75-100A – optional |
125-300A – optional |
| JE5332-29 |
JE5338-29 |
Last modified:
13 September 2023