![]() |
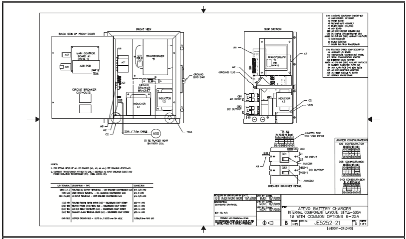
| standard (http://www.atseries.net/PDFs/JE5252-01.pdf) optional (http://www.atseries.net/PDFs/JE5252-21.pdf) |
Last modified:
3 August 2023
Need more help with this?
Don’t hesitate to contact us here.



