Pulseroller Products / Motor Rollers / Mounting Options /
Standard Point UP
● MR-DC-30P
View PDF Drawing
Download Drawing in DWG Format
Download 3D STEP Model
|
|
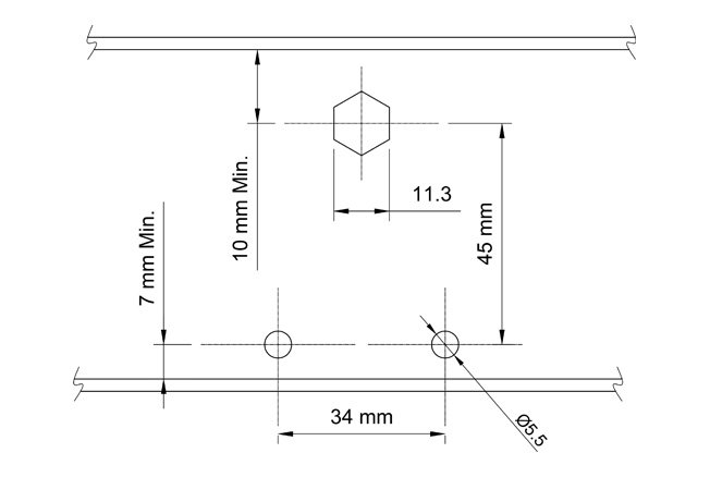
Conveyor Frame Hex and Mounting Hole Dimensions |


